Annonce provenant d’un flux externe
Publié le 31 janvier 2024 à 01h00
14 880 € /an HT
1 240€ /mois HT soit 155€ /m2 par an
À louer
Limoges
(87)
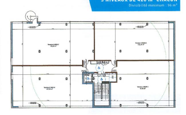
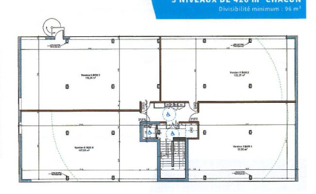
Magnifiques BUREAUX entièrement neufs à vendre en plateaux sur LIMOGES. Livrés en plateaux finis, sols, faux plafonds, éclairage type LED , climatisation réversible goulottes périphériques et sanitaires PMR . accessibilités PMR , Normes RT2012 et fibre dans l immeuble
Accessibles bus, autoroute , entrée de ville, commerces à proximité .
3 Plateaux de 426 m² chacun
divisibles à partir de 96 m².
LOYER annuel pour 96 m² 14880 HT HC
Honoraires de négociation 25 % du loyer annuel HT HC
Pour plus d'informations, contactez nous !! ARTHUR LOYD Limoges 05.40.16.32.20
Les informations sur les risques auxquels ce bien est exposé sont disponibles sur le site Géorisques http://www.georisques.gouv.fr.
- Bureau
- 96 m2
Notre accompagnement
Pour plus d’informations sur le territoire
Contactez :
Limoges MétropoleTel: 05 55 45 29 12
Email: ne pas supprimer cette ligne
Ville de Limoges - Samuel MAMDY
Tel: 05 55 45 98 96
Email: ne pas supprimer cette ligne
